
Elige el perfecto
MUEBLE DE BAÑO
Conoce la guía para seleccionar el mueble perfecto para tu baño
El panorama de tu baño cambia cuando eliges el mueble para lavamanos correcto. Además de ser parte de la decoración, te ayuda a organizar tu espacio adecuadamente. Elígelo de acuerdo con tu necesidad pensando en el mejor rendimiento y funcionalidad.
Llegó el momento de remodelar tu espacio y aquí te ayudamos a seleccionar el mueble de baño perfecto para ti.
¿Cómo elegir el mueble de baño adecuado?
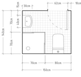
Ten presente que al elegir el mueble para tu baño debes tener claro la cantidad de espacio que tengas disponible y los elementos que vas a guardar en él.


Ten presente para qué tipo de baño estás buscando un mueble y el uso que le vas a dar.
1. Mide el espacio donde vas instalarlo, el alto, ancho y profundidad del baño.
2. El mueble no debe incomodar al usar el sanitario o la ducha, sus puertas y cajones deben abrirsen sin problema.
3. Deja 20 cm de los muros laterales o objetos cercanos...
¿Por qué tener un mueble de baño Corona?
Los muebles de baño CORONA cuentan con una amplia variedad de diseños, formatos y colores que se adaptan a diferentes espacios y estilos.
*Los atributos de los muebles de baño pueden variar de acuerdo con la categoría a qué pertenecen.















